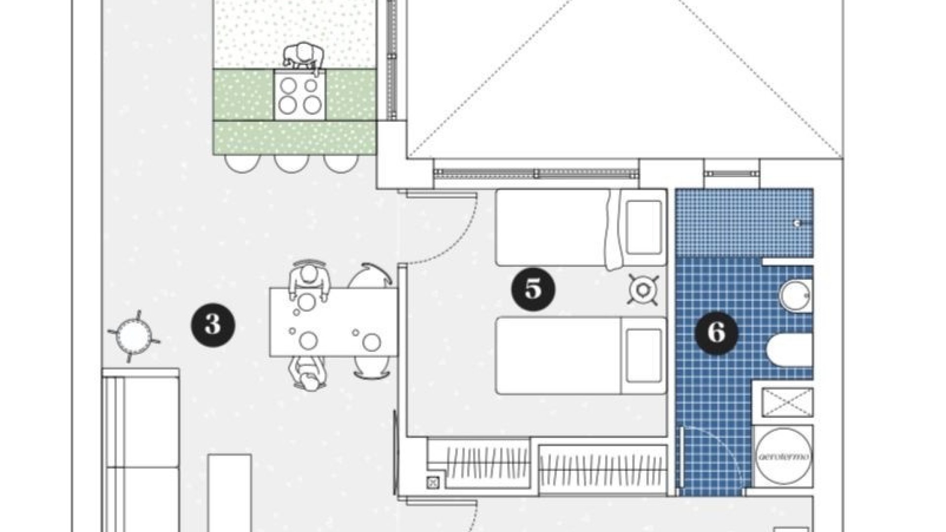
Le presentamos un moderno apartamento de dos dormitorios en venta, ubicado a solo unos pasos de la famosa playa de Los Locos en Torrevieja. Esta vivienda se encuentra en el complejo residencial Del Mar Building, que le ofrece no solo una estancia cómoda y elegante, sino también excelentes comodidades para un descanso completo. El apartamento está situado en la cuarta planta y cuenta con dos amplios dormitorios y dos baños modernos, lo que lo hace ideal para una vida confortable. Desde el salón se accede a un acogedor balcón con impresionantes vistas al mar. La vivienda también dispone de una cocina abierta, equipada con mobiliario moderno y electrodomésticos de alta calidad, garantizando comodidad en el día a día. Cabe destacar el diseño interior y la calidad de los acabados, que cumplen con los estándares más modernos. El complejo Del Mar Building dispone de ascensor y una entrada moderna y cuidada que transmite sensación de confort desde el primer momento. Para los amantes del aire libre, hay una piscina en la azotea donde podrá relajarse disfrutando de vistas panorámicas al mar. Este complejo es ideal para quienes buscan un hogar acogedor junto al mar y desean disfrutar de todas las ventajas de la vida moderna. No pierda la oportunidad de ser propietario de esta vivienda única en una de las zonas más atractivas de Torrevieja.